モデルハウスからのお知らせ
セキスイハイム★常盤小学校区★ 総社市三輪 「平屋」完成見学会
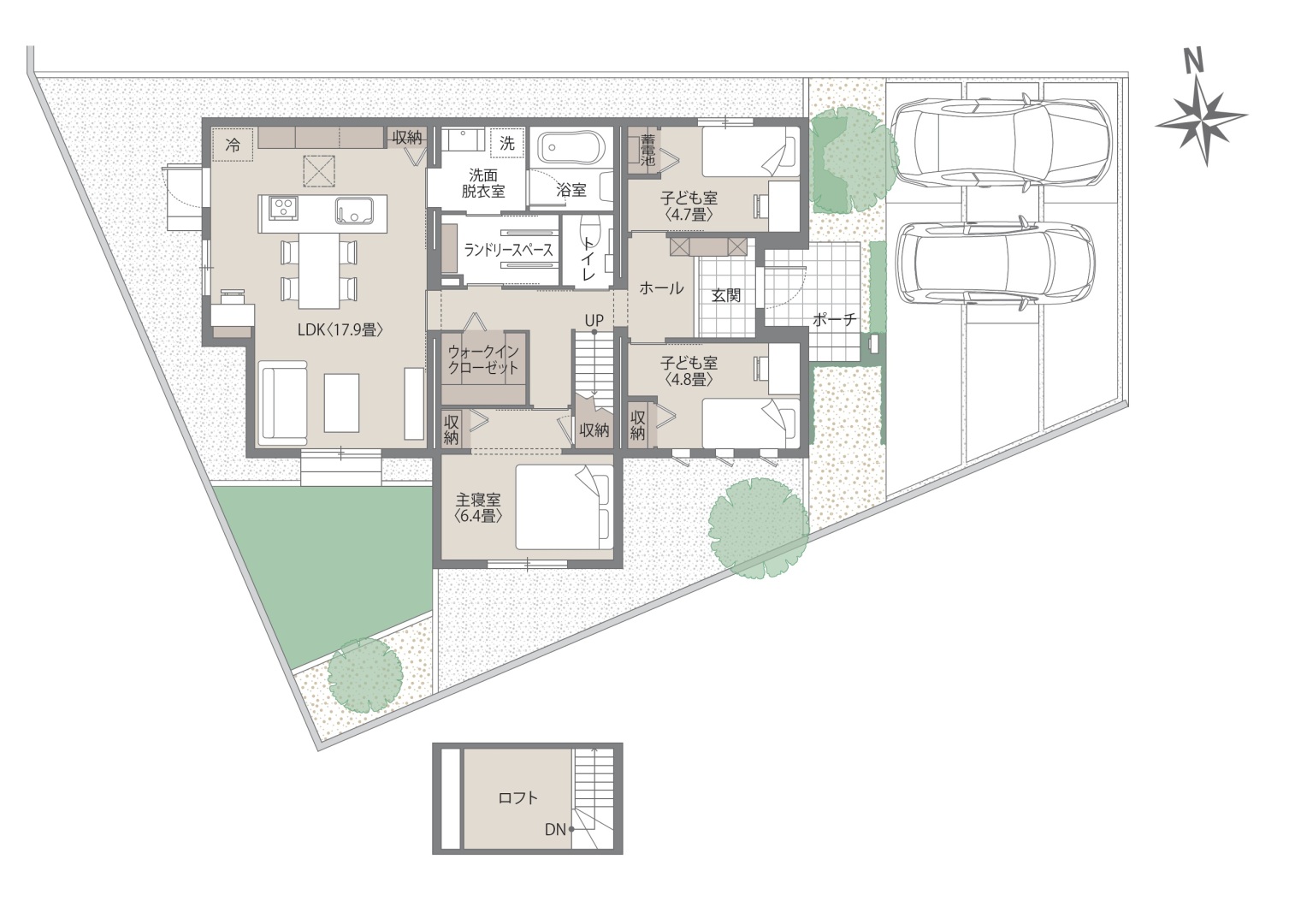
この度、総社市三輪に
平屋のモデルハウスが完成しました!
子育ても、住み替えも、
家族のこれからの暮らしに、ちょうどいい平屋です。
ダイニングやソファなど家具も配置しているので、
より“リアルな暮らし”をご体感いただける
期間限定のオープニングイベントを開催いたいします。
◎見どころポイント◎
・プライベートな庭とつながるLDK
・「洗う⇒干す⇒しまう」が、叶う家事時短導線
・遊び場にも、収納にもなる秘密のロフト
図面では分からない、
“広さ・動線・空気感”をぜひご体感下さい。
☆オープニングイベント特典☆
\先着3名様/
ご見学の方へ
プティグレーヌの1,000円分割引券プレゼント
\WEB予約特典/
QUOカードPay最大13,000円分プレゼント
※詳細はスタッフまで
平屋をご検討の方も、
住み替えをご検討の方も、
まずはお気軽に、完成見学会へお越しください。
- 時間
- 10:00~18:30
- 参加費
- 無料
- 場所
- 総社市三輪
