- 開催日
- 2025年10月18日~2025年10月19日
【ヘルシーホーム】岡山市北区栢谷完成見学会
ヘルシーホームハロウスRSKバラ園展示場店です☺
この度【岡山市北区栢谷】にて
10月18日~10月19日
2日間限定で完成見学会を実施します!!

『いつかは平屋に住みたい』
そんな想いを抱いている方へ
家族の暮らしやすさと心地よい空間を叶える、憧れの《平屋》

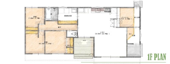
POINT 2:物干しスペースが広いので、ウッドデッキでBBQもできます☆
POINT 3:パントリーが広いので、導線やスペースに余裕ができ、収納力もバツグン!
1F床面積: 101.15㎡/30.59坪
延床面積: 101.15㎡/30.59坪
施工面積: 103.66㎡/31.35坪
敷地面積: 289.21㎡/87.48坪
実際にお客様が建てられたお家を見学して頂けるので
よりリアルな間取り・大きさを体感して頂ける機会となっております(*´ω`*)♪
~*~完成見学会の3つのメリット~*~
①リアルなサイズ感が体験できる!
リビングやキッチン、玄関や収納などお家づくりで知りたいリアルなサイズ感を体験できます。
②暮らしのイメージが湧きやすい!
実際に住むことを想定した間取りなので、暮らしのイメージをしながら見学できます。
③好みの間取りが見つかるかも!
今まで考えていなかった、家族が好みの間取りが見つかるかもしれません。
- 開催
- 2025年10月18日~2025年10月19日
- 時間
- 10:00~17:00
- 参加費
- 参加費無料
- 場所
- 見学会会場【岡山市北区栢谷】
- 延床面積
- 101.15㎡
~見どころポイント~
✂-------------------------------------------------
『ヘルシーホームハロウスバラ園店のここがお勧め★』
■岡山県下トップクラスの豊富な土地情報!
お客様のご要望に合った土地探しをできる
■34坪リアルサイズモデルハウス!
実際にお客様が建てらる事の多い大きさの
モデルハウスが併設しているのでリアルを体感できる
■月々5万円~の家づくり!
分譲住宅~規格・注文住宅まで幅広いプランをご提案
■資金のシミュレーションがすぐに分かる!
即日資金シミュレーションができ総額~月々の支払まで
分かるので家づくりの参考になる
✂-------------------------------------------------
WEBからのご予約で
『QUOカード 5000円分』プレゼント♪
※プレゼント贈呈条件はヘルシーホームHPをご確認ください。
お家作りに迷ったら、まずはヘルシーホームへご相談ください!
皆様のご来場・ご予約をお待ちしています★